Parcela con proyecto de construcción
a poca distancia del mar
Identificación de propiedad: 34795
Cala Santanyi
A poca distancia a pie de la playa
990.000€
Datos clave
| Proyecto: | Propiedad: | ||
|---|---|---|---|
| Área construida: | 436 m² | Área de propiedad: | 47.475 m² |
| Espacio vital: | 392 m² | Conexión de agua: | Disponible |
| Dormitorios: | 3 | Conexión de alimentación: | Disponible |
| Baños: | 5 | Proyecto de construcción: | Confirmado |
| Piscina: | 32 m² |
Descripción del objeto
¿Está soñando con una propiedad de lujo en uno de los lugares más codiciados de Mallorca? Este solar único en Cala Santanyí le ofrece la oportunidad única de crear su propio paraíso personal.
Ubicación y vistas
El solar de aprox. 47.475 m² se encuentra en las inmediaciones de la hermosa playa de arena de Cala Santanyí e impresiona por sus impresionantes vistas. La ubicación tranquila y exclusiva garantiza la máxima privacidad y un retiro relajante.
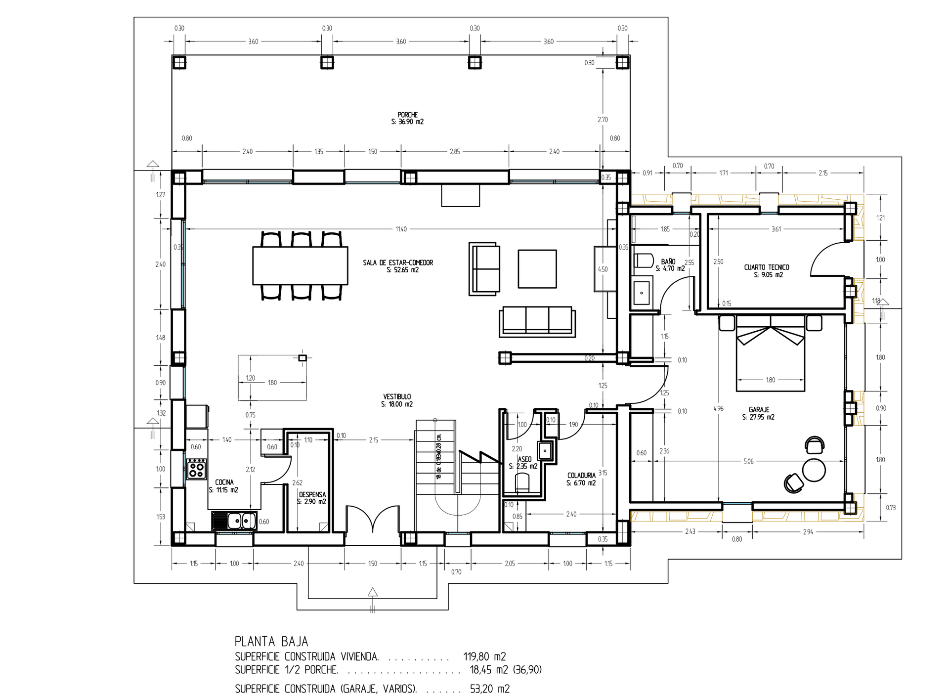
Proyecto de construcción y potencial
La parcela ya tiene permiso de construcción para una finca moderna con una superficie habitable de casi 400 m². Los planos incluyen 3 dormitorios, 5 baños y una piscina de 32 m². Sin embargo, las amplias zonas ofrecen mucho espacio para los requisitos de diseño individuales y permiten adaptar el proyecto de construcción, por ejemplo, para crear dormitorios o espacios de vida adicionales. Los movimientos de tierra para la casa y la piscina ya se han completado, por lo que puede empezar a construir a corto plazo.
Cala Santanyí - Una joya en la costa sureste de Mallorca
Cala Santanyí es conocida por sus pintorescas bahías, aguas cristalinas y naturaleza virgen. El idílico pueblo ofrece una buena infraestructura con tiendas, restaurantes y una gran variedad de deportes acuáticos. Al mismo tiempo, podrá disfrutar de la paz y la privacidad de una exclusiva zona residencial. En los alrededores también encontrará numerosos campos de golf, pueblos pintorescos y la animada ciudad de Palma de Mallorca.
La finca de sus sueños en una ubicación perfecta
Esta propiedad es una oportunidad única para hacer realidad la casa de sus sueños en uno de los lugares más codiciados de Mallorca. Benefíciese de la tranquilidad y la belleza de la naturaleza, la proximidad a la playa y las numerosas opciones de ocio.
Atractiva inversión
Esta propiedad no es sólo un hogar, sino también una sólida inversión. Cala Santanyí experimenta actualmente un aumento constante de los precios inmobiliarios, lo que hace de este lugar una opción especialmente atractiva. Al construir la finca de sus sueños, no sólo se asegura una residencia exclusiva, sino también una inversión con un valor estable para el futuro.
Póngase en contacto con nosotros para más información y una visita.
Lugar










