Plot with construction project within walking distance to the beach
Property ID: 34795
Cala Santanyi
A few minutes walk from the beach
€850.000
Key data
| Project: | Property: | ||
|---|---|---|---|
| Constructed area: | 436 sqm | Plot area: | 47.475 sqm |
| Living space: | 392 sqm | Water connection: | Available |
| Bedrooms: | 3 | Power connection: | Available |
| Bathrooms: | 5 | Construction project: | Confirmed |
| Pool: | 32 sqm |
Property description
Are you dreaming of a luxurious property in one of Mallorca's most sought-after locations? This unique plot in Cala Santanyí offers you the unique opportunity to create your own personal paradise.
Location and views
The plot of approx. 47,475 m² is located in the immediate vicinity of the beautiful sandy beach of Cala Santanyí and impresses with its breathtaking views. The quiet and exclusive location guarantees maximum privacy and a relaxing retreat.
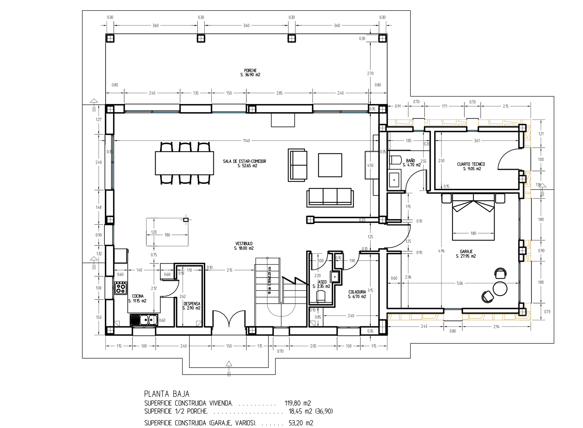
Building project and potential
The plot already has planning permission for a modern finca with a living space of almost 400 m². The plans include 3 bedrooms, 5 bathrooms and a 32 m² pool. However, the spacious areas offer plenty of room for individual design requirements and allow the building project to be adapted, for example to create additional bedrooms or living spaces. The earthworks for the house and pool have already been completed, so you can start building at short notice.
Cala Santanyí - A jewel on the south-east coast of Mallorca
Cala Santanyí is known for its picturesque bays, crystal-clear water and unspoilt nature. The idyllic village offers a good infrastructure with shops, restaurants and a variety of water sports. At the same time, you can enjoy the peace and privacy of an exclusive residential location. In the surrounding area you will also find numerous golf courses, picturesque villages and the lively city of Palma de Mallorca.
Your dream finca in a perfect location
This property is a rare opportunity to realise your personal dream home in one of the most sought-after locations in Mallorca. Benefit from the tranquillity and beauty of nature, the proximity to the beach and the numerous leisure options.
Attractive investment
This property is not only a home, but also a solid investment. Cala Santanyí is currently experiencing a steady rise in property prices, which makes this location a particularly attractive choice. By building your dream finca, you are not only securing an exclusive residence, but also an investment with a stable value for the future.
Contact us for more information and a viewing.
situation









