Parcela con proyecto de construcción
en el corazón de Ses Salines
ID de propiedad: 21993
Ses Salines
Visión • proyecto de construcción confirmado • a poca distancia del centro
349.000€
CONSTRUIDA puede comprar la casa por el siguiente precio:
2.950.000€
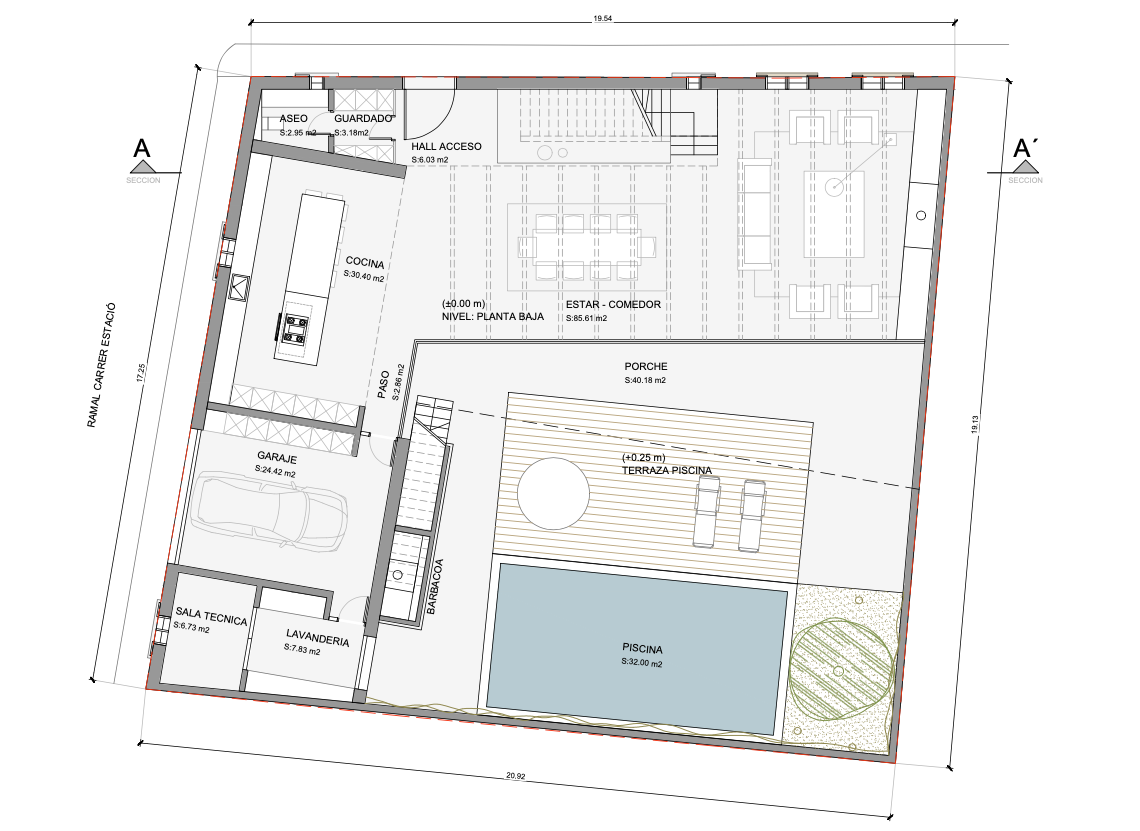
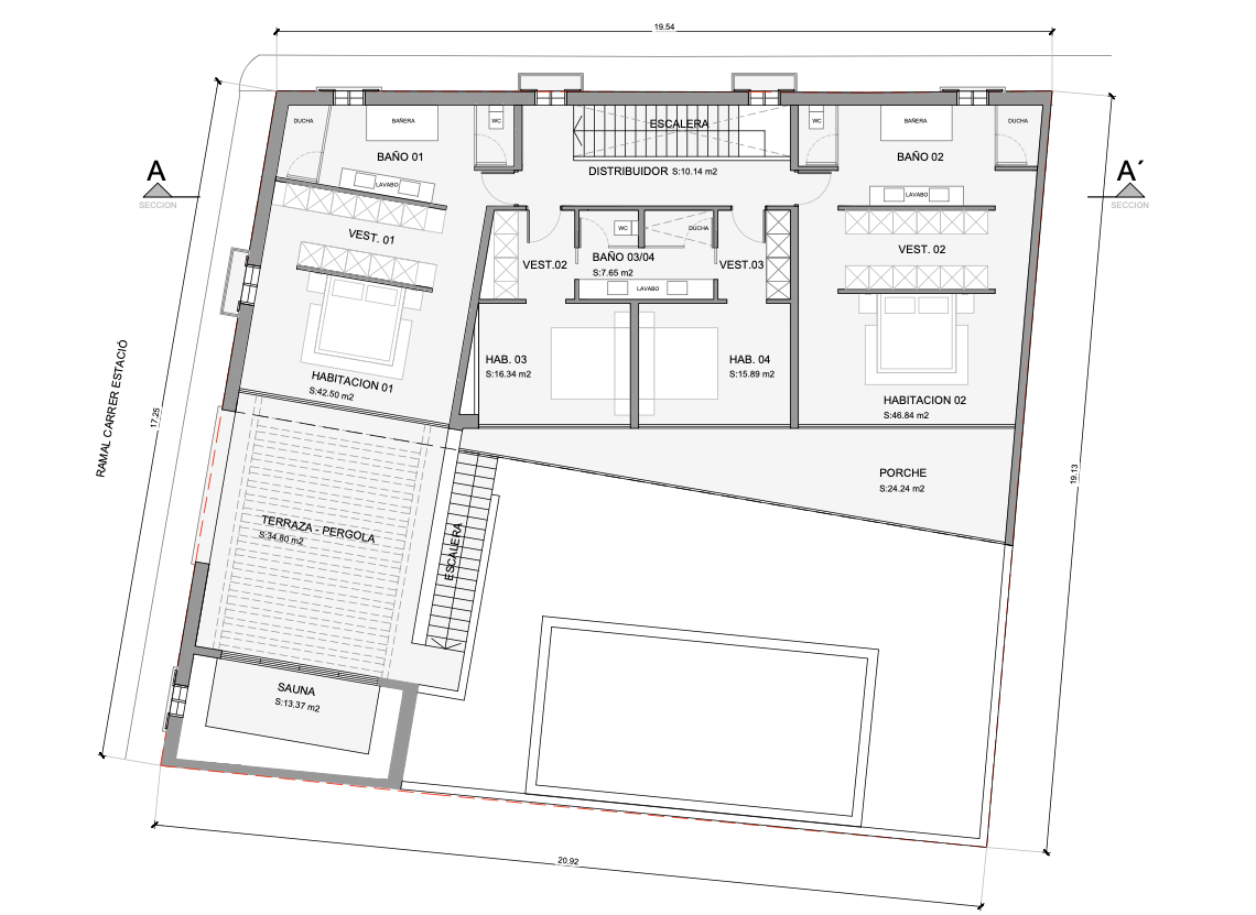
Datos clave del proyecto de construcción.
| Dormitorios: | 4 | Piscina: | 32 m² |
|---|---|---|---|
| Baños: | 4 | Área construida: | 440 m² |
| de ellos en Suite: | 3 | Área de propiedad: | 382 m² |
Descripción del objeto
Este atractivo terreno edificable está situado en una codiciada zona residencial de Ses Salines, a pocos minutos a pie del vibrante centro de la ciudad con su amplia gama de tiendas y restaurantes. La proximidad a las fantásticas playas de la región hace de esta ubicación un verdadero paraíso para los amantes del sol y de los deportes acuáticos.
Proyecto de construcción:
Ya existe un proyecto básico de construcción aprobado en la parcela para una espaciosa casa unifamiliar con aproximadamente 440 metros cuadrados de espacio habitable. Este proyecto ofrece una excelente base para la realización de sus sueños de vida individuales.
La casa:
El chalet impresiona por su concepto moderno y diáfano. Se han previsto cuatro dormitorios que ofrecen suficiente privacidad. Destaca el salón-comedor abierto con una amplia cocina contigua. Gracias a las ventanas del suelo al techo y al acceso directo a la terraza con piscina, podrá disfrutar de un ambiente luminoso y de unas maravillosas vistas de los alrededores.
Características adicionales:
Garaje
Ubicación tranquila y soleada
Cerca de las playas y del centro de la ciudad
Ideal para familias y amantes de la naturaleza
Gran potencial de personalización
Este solar con proyecto básico de construcción aprobado le ofrece la oportunidad única de construir la villa de sus sueños en uno de los lugares más codiciados de Mallorca.
Póngase en contacto con nosotros para más información y para concertar una visita.
Lugar
























