Plot with construction project in the heart of Ses Salines
Property ID: 21993
Ses Salines
Vision • confirmed construction project • within walking distance to the center
349.000€
COMPLETED you can buy the villa for the following price:
2.950.000€
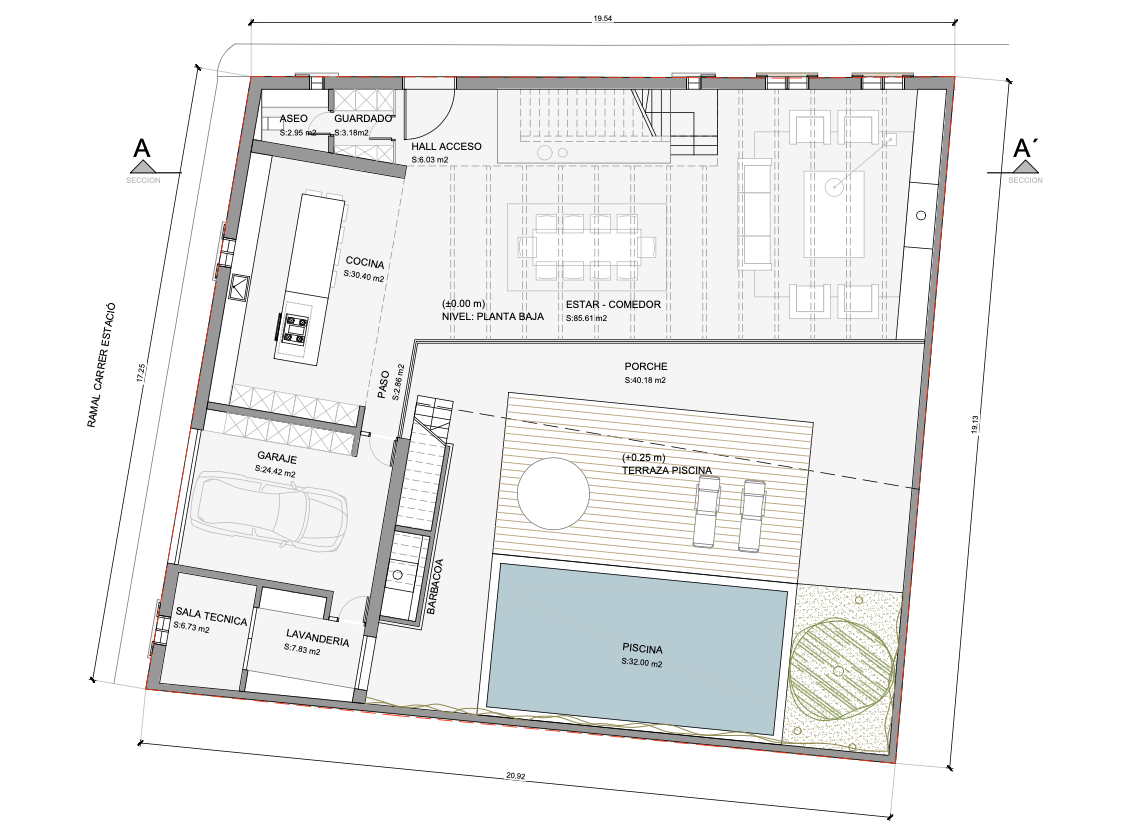
Key data of the construction project
| Bedrooms: | 4 | Pool: | 32 sqm |
|---|---|---|---|
| Bathrooms: | 4 | Built up area: | 440 sqm |
| thereof en Suite: | 3 | Plot area: | 382 sqm |
Property description
This attractive building plot is located in a sought-after residential area of Ses Salines, just a few minutes' walk from the vibrant town centre with its wide range of shops and restaurants. The proximity to the fantastic beaches of the region makes this location a true paradise for sun worshippers and water sports enthusiasts.
Building project:
There is already an approved basic building project on the plot for a spacious detached house with approx. 440 square metres of living space. This project offers an excellent basis for the realisation of your individual living dreams.
The house:
The detached house impresses with its modern and open-plan concept. Four bedrooms are planned, providing sufficient privacy. The open-plan living and dining area with adjoining, spacious kitchen is a particular highlight. Thanks to the floor-to-ceiling windows and direct access to the terrace with pool, you can enjoy a light-flooded living ambience and marvellous views of the surrounding area.
Additional features:
Garage
Quiet and sunny location
Close to beaches and the town centre
Ideal for families and nature lovers
Great potential for customisation.
This building plot with an approved basic building project offers you the unique opportunity to build your dream villa in one of the most sought-after locations in Mallorca.
Contact us today for more information and to arrange a viewing!
Situation
























