Parcela edificable tranquila con proyecto presentado cerca de Santanyi
Identificación de propiedad: 95993
Santanyi
Vista lejana • Proyecto presentado • A pocos kilómetros del centro
660.000€
llave de datos
| Proyecto: | Sólar: | ||
|---|---|---|---|
| Superficie vivienda: | 380m² | Superficie sólar: | 19.400m² |
| Dormitorio: | 5 | ||
| Baños: | 5 | ||
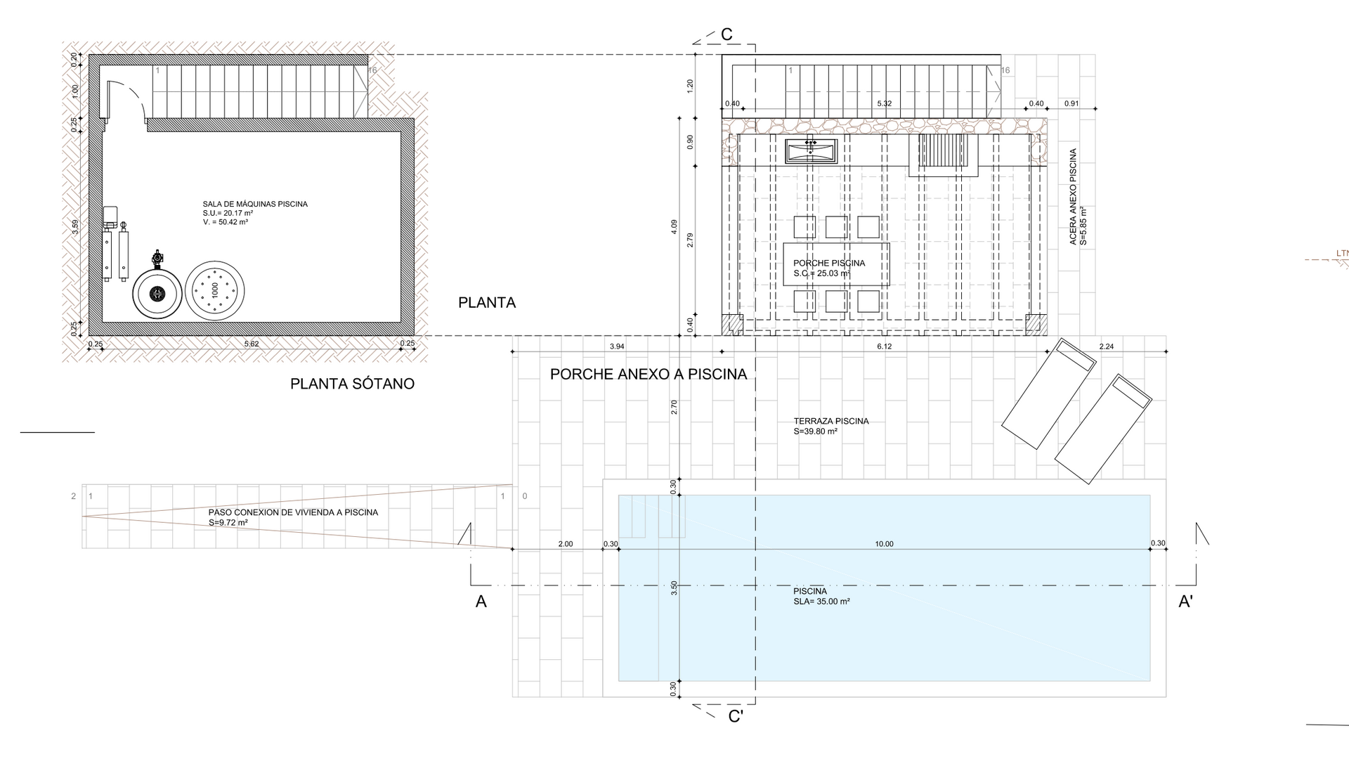
| Piscina: | 35m² |
Descripción del objeto
Este bonito solar se encuentra cerca de Santanyi. Tiene aprox. 19400m² y está situado en una zona tranquila.
En enero de 2023 el propietario ha presentado un proyecto de construcción, que por supuesto puede ser asumido. El proyecto comprende una finca con aprox. 380m² incluyendo un sótano.
Hay 5 dormitorios, 5 baños, un salón-comedor abierto con cocina contigua.
El sótano ofrece espacio para una sala de ocio.
En el exterior hay muchas zonas de terraza, una cocina exterior y una piscina de 35m².
Por supuesto, existe la posibilidad de adaptar el proyecto según sus deseos con nuestros arquitectos para crear el sueño de su propia finca según su imaginación.
La gente necesita cuentos de hadas - viva uno con una propiedad de
Palazzino Living - House of Homes
Vecindad
En el extremo sureste de Mallorca, a unos 50 km de Palma, se encuentra el bonito pueblo de Santanyi. Las casas aquí están construidas en el estilo mallorquín original. El centro ofrece muchas tiendas con encanto donde se puede encontrar moda seleccionada, joyería y artículos de decoración. Los miércoles y sábados podrás disfrutar del bullicio de uno de los mercados más bonitos de la isla. En las inmediaciones de Santanyi se encuentra Cala Santanyi, así como el Parque Natural de Mondragó con sus tres hermosas bahías. El renombrado campo de golf Vall d'Or, con su fantástica vista al mar, está a unos 15 minutos en coche desde Santanyí. Se puede llegar a varios puertos deportivos en unos 15 minutos en coche. Otras hermosas bahías en las inmediaciones son Cala Lombards, Calo des Moro, Cala S'Almunia y S'Amarador.











