Quiet located plot with submitted project
near Santanyi
Property ID: 95993
Santanyi
Distant view • Submitted project • A few kilometers from the center
660.000€
key data
| Project: | Plot: | ||
|---|---|---|---|
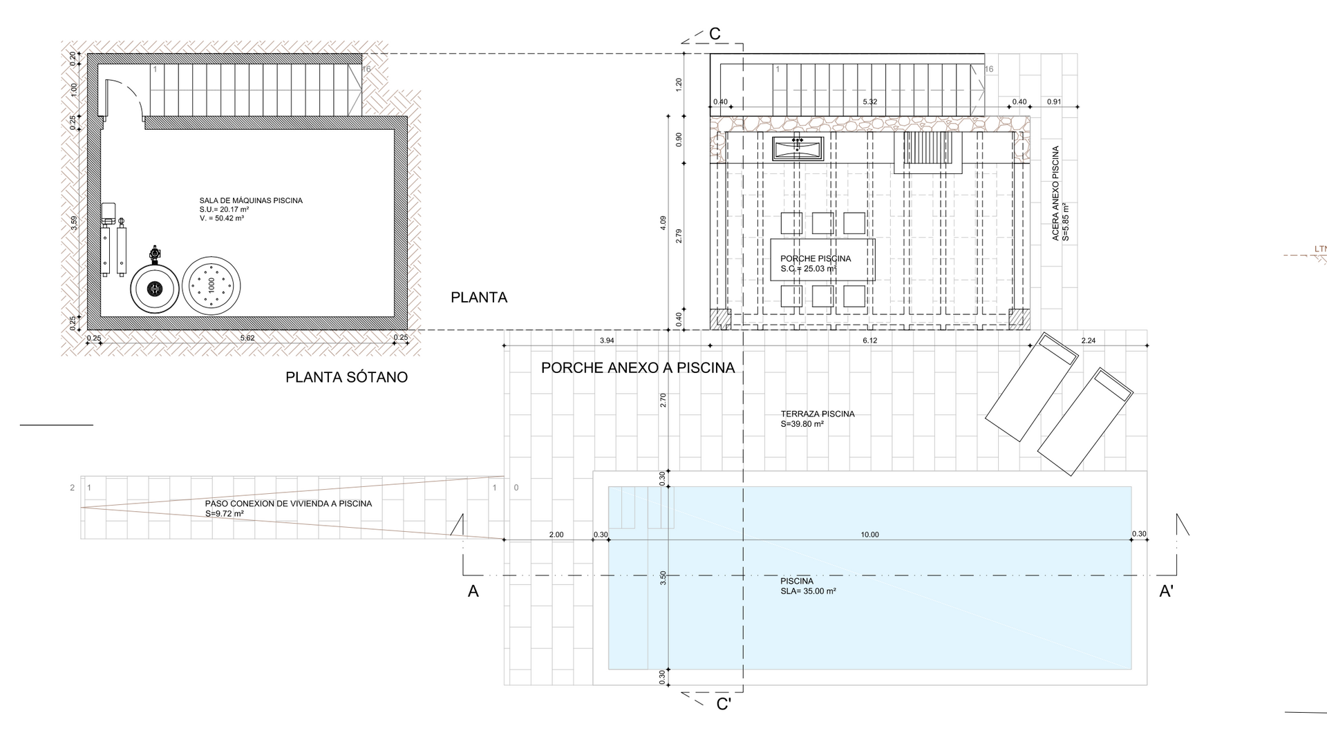
| Living area: | 380m² | Plot size: | 19.400m² |
| Bedrooms: | 5 | ||
| Bathrooms: | 5 | ||
| Pool: | 35m² |
object description
This beautiful plot is located near Santanyi. It comprises approx. 19400m² and is quietly situated.
In January 2023 the owner has submitted a building project, which of course can be taken over. The project comprises a finca with approx. 380m² including a cellar.
Planned are 5 bedrooms, 5 bathrooms, an open living and dining area with adjoining kitchen.
The cellar offers space for a hobby room.
Outside there are many terrace areas, an outdoor kitchen and a 35m² pool.
Of course, there is the possibility to adapt the project according to your wishes with our architects in order to create your dream of your own finca according to your imagination.
People need fairy tales - live one with a property from
Palazzino Living - House of Homes
Vicinity
In the extreme southeast of Mallorca, about 50 km from Palma, lies the beautiful village of Santanyi. The houses here are built in the original Mallorcan style. The center offers many charming shops where you can find selected fashion, jewelery and decorative items. On Wednesdays and Saturdays you can enjoy the hustle and bustle of one of the most beautiful markets on the island. In the immediate vicinity of Santanyi is Cala Santanyi, as well as the Mondrago Nature Park with its three beautiful bays. The renowned Vall d'Or golf course, with its fantastic sea view, is about 15 minutes by car from Santanyí. Various marinas can be reached in about 15 minutes by car. Other beautiful bays in the immediate vicinity are Cala Lombards, Calo des Moro, Cala S'Almunia and S'Amarador.











