Ruhig gelegenes Baugrundstück mit eingereichtem Projekt bei Santanyi
Ruhig gelegenes Baugrundstück mit eingereichtem Projekt bei Santanyi
Immobilien ID: 95993
Santanyi
Weitblick • Eingereichtes Projekt • Wenige Kilometer vom Zentrum entfernt
660.000€
Santanyi
Weitblick • Eingereichtes Projekt • Wenige Kilometer vom Zentrum entfernt
660.000€
Eckdaten
| Projekt: | Grundstück: | ||
|---|---|---|---|
| Wohnfläche: | 380m² | Grundstücksfläche: | 19.400m² |
| Schlafzimmer: | 5 | ||
| Badezimmer: | 5 | ||
| Pool: | 35m² |
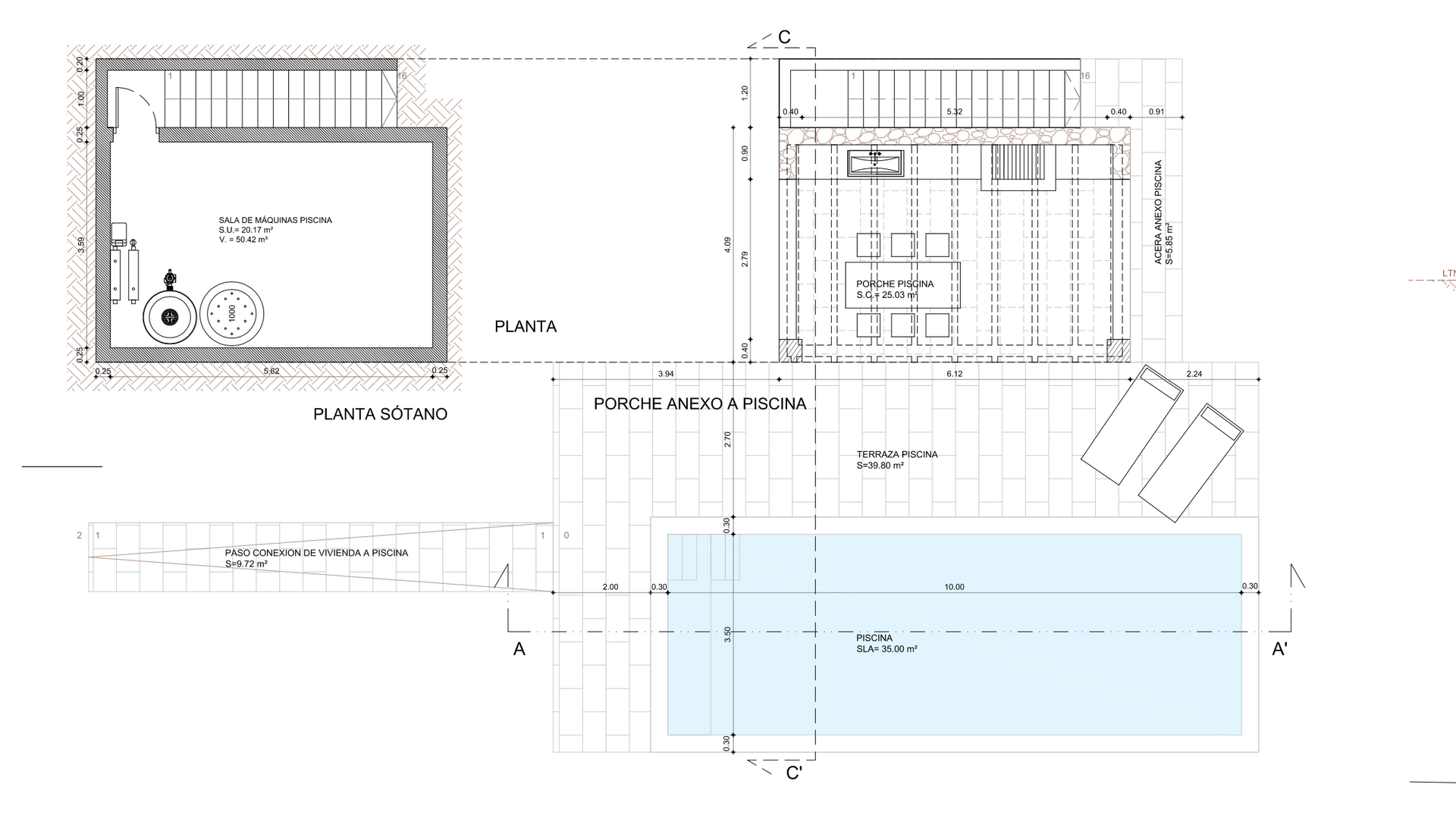
Objektbeschreibung
Dieses schöne Grundstück befindet sich in der Nähe von Santanyi. Es umfasst ca. 19400m² und ist ruhig gelegen.
Im Januar 2023 hat der Eigentümer ein Bauprojekt eingereicht, welches natürlich übernommen werden kann. Das Projekt umfasst eine Finca mit ca. 380m² inklusive einem Keller.
Geplant sind 5 Schlafzimmer, 5 Badezimmer, ein offener Wohn- und Essbereich mit angrenzender Küche.
Der Keller bietet Platz für einen Hobbyraum.
Im Außenbereich befinden sich viele Terrassenfläche, eine Außenküche und ein 35m² großer Pool.
Natürlich besteht die Möglichkeit, dass Sie mit unseren Architekten das Projekt nach Ihren Wünschen anpassen, um sich Ihren Traum einer eigenen Finca nach Ihren Vorstellung zu gestalten.
Menschen brauchen Märchen - leben Sie eines mit einer Immobilie von
Palazzino Living - House of Homes
Umgebung
Im äußersten Südosten Mallorcas, ca. 50 km von Palma entfernt, liegt das wunderschöne Dorf Santanyi. Die Häuser sind hier im ursprünglichen mallorquinen Stil erbaut.
Das Zentrum bietet viele charmante Läden, in denen man ausgewählte Mode, Schmuck- und Dekoartikel findet. Mittwochs und samstags können Sie hier das bunte Treiben auf einem der schönsten Märkte der Insel genießen.
In unmittelbarer Nähe von Santanyi befindet sich die Cala Santanyi, sowie der Naturpark Mondrago mit ihren drei herrliche Buchten.
Der renommierte Golfplatz Vall d’Or, mit seinem traumhaften Meerblick, ist ca. 15 Autominuten von Santanyí entfernt. Verschiedene Yachthäfen erreichen Sie in ca. 15 Fahrminuten. Weitere, wunderschöne Buchten in direkter Umgebung sind die Cala Lombards, die Calo des Moro, die Cala S‘Almunia und S’Amarador.











